Meny
Stugknuten
StartHyra stugaMina favoriterMina meddelandenMina bokningarHyr ut din stuga
#38976 - På Stugknuten.com sen 2025-01-02
 7 + 4 bäddar
 160
 20000 - 25000 kr/vecka
(1)

Unik skånelänga nära hav, natur och kultur!

Det här boendet har Stugknutens S-märkning

Stugknutens S-märkning innebär att din hyresvärd har valt att ge dig en så trygg affär som möjligt. Det här boendet betalas med kort i samband med bokning men hyran betalas inte ut till din hyresvärd förrän du har checkat ut. Denna trygghet gäller endast om bokning och betalning sker via Stugknutens system. Stugknuten tar varken boknings- eller serviceavgifter från dig som gäst.  
Läs mer här

Upptäck denna unika, nyrenoverade skånelänga som erbjuder en perfekt bas för en härlig semester i Skåne. Här kombineras gammaldags charm med moderna bekvämligheter och ett läge nära allt från kust och natur till kultur och shopping.
Plats för flera familjer: Med 7 rum och 160 kvm boarea (exkl. biytor) finns det gott om utrymme för stora sällskap.
Pool och äventyrlig trädgård: Ta ett dopp i poolen (ej uppvärmd) eller utforska den lummiga trädgården på 3057 kvm – en plats för både avkoppling och lek.
Fantastiska utomhusmiljöer: Grilla och umgås på mysiga uteplatser som förgyller långa sommarkvällar.
Orangeri och annex: Perfekta miljöer för att samlas, oavsett väder.
Huset har både ett gym och en nergrävd studsmatta för de aktiva.
Kamin och hemtrevnad, koppla av framför brasan när kvällen faller på.
Modernt badrum med dusch, samt en extra toalett på ovanvåningen.

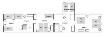
7 sängar + 4 extrabäddar:
Rum 1: Tre enkelsängar (kan slås ihop)
Rum 2: Två enkelsängar (kan slås ihop)
Rum 3: En dubbelsäng + bäddsoffa för två
Rum 4: Mysig sovalkov med skjutdörr för två
Finns även extra säng och spjälsäng

Perfekt läge nära natur, hav och städer. Alla tidsangivelser baserade på bil:

Kust och hav: 10 min
Badvänlig sjö och Järavallens strövområde: 7 min
Skäralids nationalpark: 30 min
Borstahusens strand: 20 min

Kanotpaddling vid Borgebyslott: 15 min
Trollenäs och Skarhults slott: 20–30 min
Barsebäcks golfbana: 13 min
Motorcrossbana (stängd sommartid): 5 min
Vikingatider Löddeköpinge: 15 min

Galleria Center Syd shoppingcenter: 15 min
Lund, Helsingborg och Malmö: 30 min
Köpenhamn: 60 min

Tågstation i Dösjebro: 7 min

Vatten, värme, el, fiber-WiFi, TV, fullt utrustat kök och tvättmöjligheter (ej torktumlare) inkluderat i hyran.

Inga husdjur eller rökning inomhus.

Städning avtalas med uthyraren.
Stugknuten
Säsonger och prisnivåer

Pris per vecka från 20000 kr

Pris per vecka till 25000 kr

Vecka 24-35: 25.000

Vecka 36-40: 20.000

Huset hyrs inte ut dagvis eller weekends.
Huset hyrs endast ut hela veckor söndag till söndag.
Omdömen

Följande personer har lämnat ett omdöme

Annika Sundbaum, hyrd 2025
Verifierat omdöme
Jag och min stora familj hade en helt magisk vecka i detta hus! Bilderna gör inte huset och trädgården rättvisa, det är ännu finare i verkligheten! Maria och hennes medvärdar har verkligen tänkt på allt , och vi har fått ett fantastiskt bemötande både inför vår vistelse och på plats. Vi är mer än nöjda och kommer gärna tillbaka!

Helhetsbetyg

Renlighet

Läge

Annonsens korrekthet

Stugknuten
Bekvämligheter
Boende
  •  Bredband
  •  Grillmöjligheter
  •  Hundar ej tillåtna
  •  Mobiltelefontäckning
  •  Rökning inomhus förbjuden
  •  Separata sovrum
  •  Tv – Ingen digital tvbox/reguljär tv. Chromecast finns tillgänglig för streaming.
  •  Utemöbler
  •  Uteplats
  •  Öppen spis
 Köksutrustning
  •  Diskmaskin
  •  Frys
  •  Kylskåp
  •  Matlagningsmöjligheter
  •  Mikrovågsugn
 Faciliteter
  •  Dusch
  •  Pool
  •  Tvättmaskin
  •  WC
 Finns i närheten
  •  Golf
  •  Vandringsleder
Övrig information

Våra råd till hyresgästen

Stugknuten
Stugknuten

Om du vill boka eller har några frågor

Stugor att hyra

Önskas hyra

Om Stugknuten

Övriga språk

Stugknuten in English

Stugknuten på Svenska

Stugknuten auf Deutsch

Stugknuten in het Nederlands

Stugknuten i Norsk

Stugknuten i Dansk

Kontakt

Stugknuten uthyrning AB (556681-5238)
KIVRA: 556681-5238
106 31 Stockholm
Sverige
info@stugknuten.com