#41759 - på Stugknut.com siden 2026-01-30
 4 + 2 senger
 70
 13900 SEK/uke

Etagelägenhet i Brf Högfjället vecka 9

Dette boalternativet har Stugknutens S-merking

Stugknutens S-merking betyr at utleier har valgt å gi deg så trygg leie som over hode mulig. Dette boalternativet betales i forbindelse med bookingen, men leien betales ikke ut til utleier før du har sjekket ut. Denne sikkerheten gjelder kun dersom booking og betaling gjøres via Stugknutens system.  
Les mer her.

vecka 9 -2026 HÖGFJÄLLET SÄLEN 6 bäddar (4+2), 70 kvm, Bastu, utsikt mot backen, WiFi ingår, Ski in/Ski out!
I år hyr vi ut vår etagelägenhet på Brf Högfjället under vecka 9 sön-sön. Superfina långfärdspår som man inte behöver betala för likt anläggningarna i Lindvallen och Tandådalen m.fl. Man når Högfjällshotellet utan att behöva gå ut, så det är smidigt att ta del av hotellets faciliteter när man önskar. Hundar är välkomna!
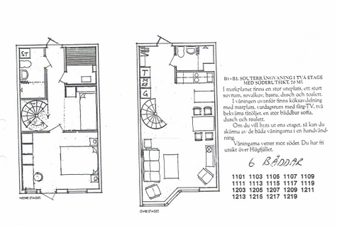
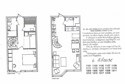
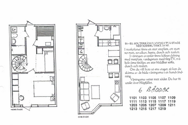
HÖGFJÄLLET ETAGELÄGENHET (se planritning i bilagda bilder)
Entréplan med vardagsrum, köksavdelning, bäddbar soffa, spiraltrappa och dusch/wc. På nedre plan finns ett sovrum med dubbelsäng, en sovalkov med våningssäng, dusch/wc samt bastu. Rogivande utsikt mot backen, burspråk,uteplats, egen p-plats och varmt skidförråd.
En Ica och biograf i direkt närhet. Massor med sportlovsaktiviteter anpassade för barn genom hotellet och skistar.
Pris 13 900 kr exkl städning (lakan och handukar ingår ej).
Passa på att ta del av denna lugna plats med direkt närhet till alla faciliteter på Högfjället och i närområdet.
Stugknuten
Sesong og prisnivå

Pris per uke fra 13900 SEK

Pris per uke til 13900 SEK

Stugknuten
Fasiliteter
Informasjon
  •  Bredbånd
  •  Hunder er velkomne
  •  Mobildekning
  •  Separerte soverom
  •  TV
  •  Utendørsmøbler
  •  Uteplass (terrasse osv)
 Kjøkkenutstyr
  •  Fryser
  •  Kjøleskap
  •  Kokemuligheter – Ett fullutrustat kök.
  •  Mikrobølgeovn
  •  Oppvaskmaskin
 Baderomsfasiliteter
  •  Badstue
  •  Dusj
  •  Toalett
  •  Tørkeskap
  •  Vaskemaskin – Om man hyr av oss som är delägare så kan man få tillgång till ett rum i direkt närhet som har en tvättmaskin.
 Tilgjengelig i nærheten
  •  Langrenn
  •  Slalåm (snowboard)
  •  Snøscooterkjøring – Det finns uthyrning av skoter samt skotersafari i närheten
Tilleggsinformasjon

Råd til leietakere når de bestiller

Stugknuten
Stugknuten

Hvis du ønsker å bestille, eller har noen spørsmål

Hytter til leie

Hytter ønskes

Om Stugknuten

Andre språk

Stugknuten in English

Stugknuten på Svenska

Stugknuten auf Deutsch

Stugknuten in het Nederlands

Stugknuten i Norsk

Stugknuten i Dansk

Kontakt

Stugknuten uthyrning AB (556681-5238)
KIVRA: 556681-5238
106 31 Stockholm
Sverige
info@stugknuten.com